Soundbites Studio
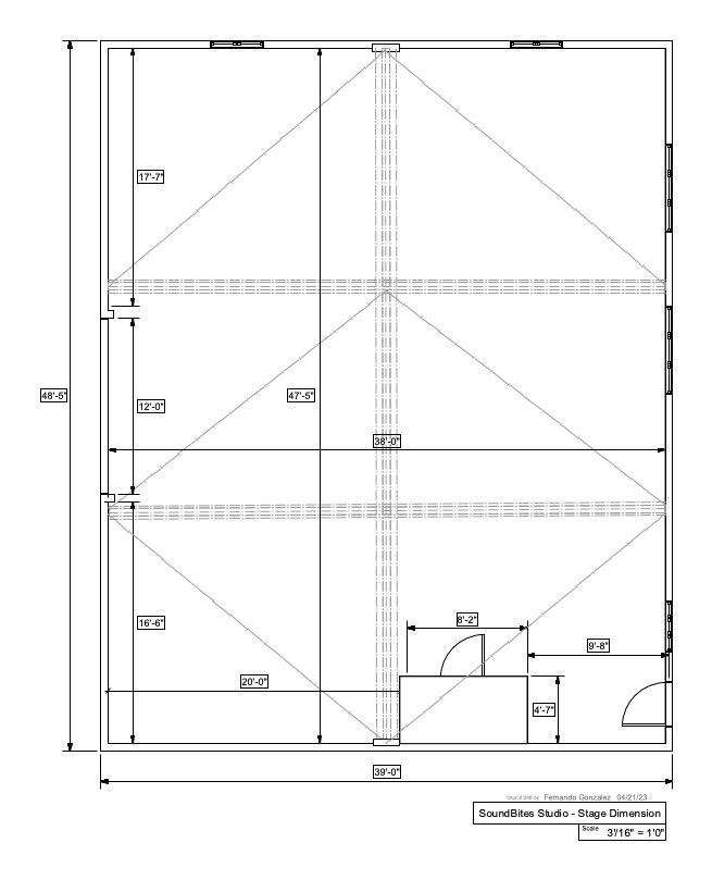
This project involved creating a detailed 3D model of Soundbite Studios, a frequent venue for student productions at the USC School of Dramatic Arts. Using Vectorworks, I drafted an accurate digital representation of the space to support future productions and improve the accuracy of design documents.
Services
Draftsperson
Client
USC Theatre Student Association
Based
Soundbites Studio
SOFTWARE USED
Vectorworks



